Properties

Features
: Central Air
: Electric to Site , Natural Gas Available , Water Available
Address Map
US
IL
Cook
Niles
60714
Milwaukee
6959
Avenue
W88° 12' 8.7''
N42° 0' 29.2''
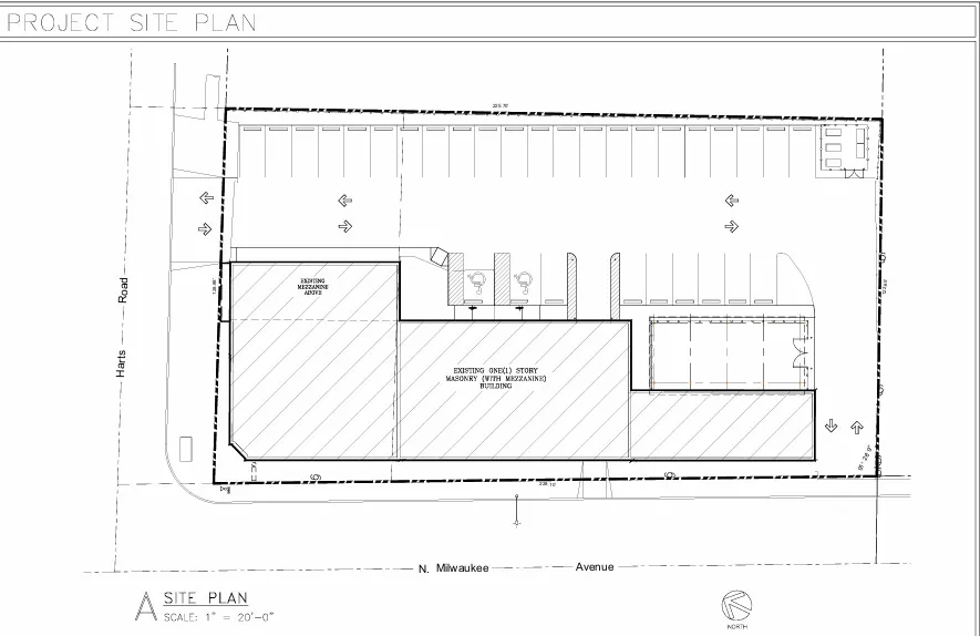
Milwaukee Ave just south of Touhy Ave (corner of Milwaukee Ave and Harts RD)
Niles
Niles
N
N
COMMR
Additional Information
10000
: Brick , Concrete
: Commercial
Circuit Breakers
Circuit Breakers
228 x 128 x 226 x 122
3
3
Commercial
1
: Municipal Water
RCI Preferred Realty
John Gall
Financial
45158.97
Listing Information
118234
86072
MRED
Listing Information
Active
2026-03-22T05:07:18Z
2026-03-22T05:05:21Z
Property Description

Great opportunity for Investor/Owner operator of this 2018-built, 10,000 sq ft bldg with 31 parking spaces! Fantastic stoplight corner of Milwaukee Ave/Harts Rd in booming Niles, IL. * The buildings sit on a 30,000+ sq ft lot with great exposure – 280-ft of frontage along Milwaukee Ave * This is a mixed-use property comprising two PIN #s and three income streams (Joe Donut restaurant, Panel Brick showroom/warehouse and 2BR apartment) * Restaurant is roughly 3,700 sq ft, sits 100 * Storefront is 2,500 sq ft with attached 2,510 2-story warehouse * Residential apartment is 2BR/1BTH roughly 1,000 sq ft * Covered storage space in rear is an additional 1,500 sq ft *** Sellers are open to extending leases, vacating upon sale or a combination thereof *** Property is located in desirable neighborhood with an excellent customer base in the city of Niles. * Please DO NOT DISTURB THE TENANTS *

Commercial Sale For Sale

6959 N Milwaukee Avenue, Niles, Illinois 60714

$2,950,000
Listing ID#12592386
QR Code
Basic Details
Property Type : Commercial Sale
Listing Type : For Sale
Listing ID : 12592386
Price : $2,950,000
Year Built : 1966
Listing Status : Active
Property Sub Type : Mixed Use
Contact Agent