Properties

Features
: Natural Gas
: None
: Deck
: Garage Owned , Garage , Detached , Yes
: Door Monitored By TV
: Public Sewer
Address Map
US
IL
Cook
Chicago
60607
Fulton
1420
Street
W88° 20' 11.8''
N41° 53' 12.5''
Ogden to Fulton, West on Fulton
CHI - Near West Side
CHI - Near West Side
W
W
Neighborhood
Skinner Elementary School
Skinner Elementary School
299
Wells Community Academy Senior H
299
299
Skinner Elementary School
Additional Information
: Brick
2
2,484
: Lake Michigan
RE/MAX Premier Luxury Collection
Augusto Panlilio
Financial
27768
Listing Information
Nickola Wells
88790
RE/MAX Premier Luxury Collection
849154
88790
MRED
: None
Listing Information
121651
88790
RE/MAX Premier Luxury Collection
Active
2026-04-20T14:43:03Z
2026-04-15T05:05:19Z
Property Description

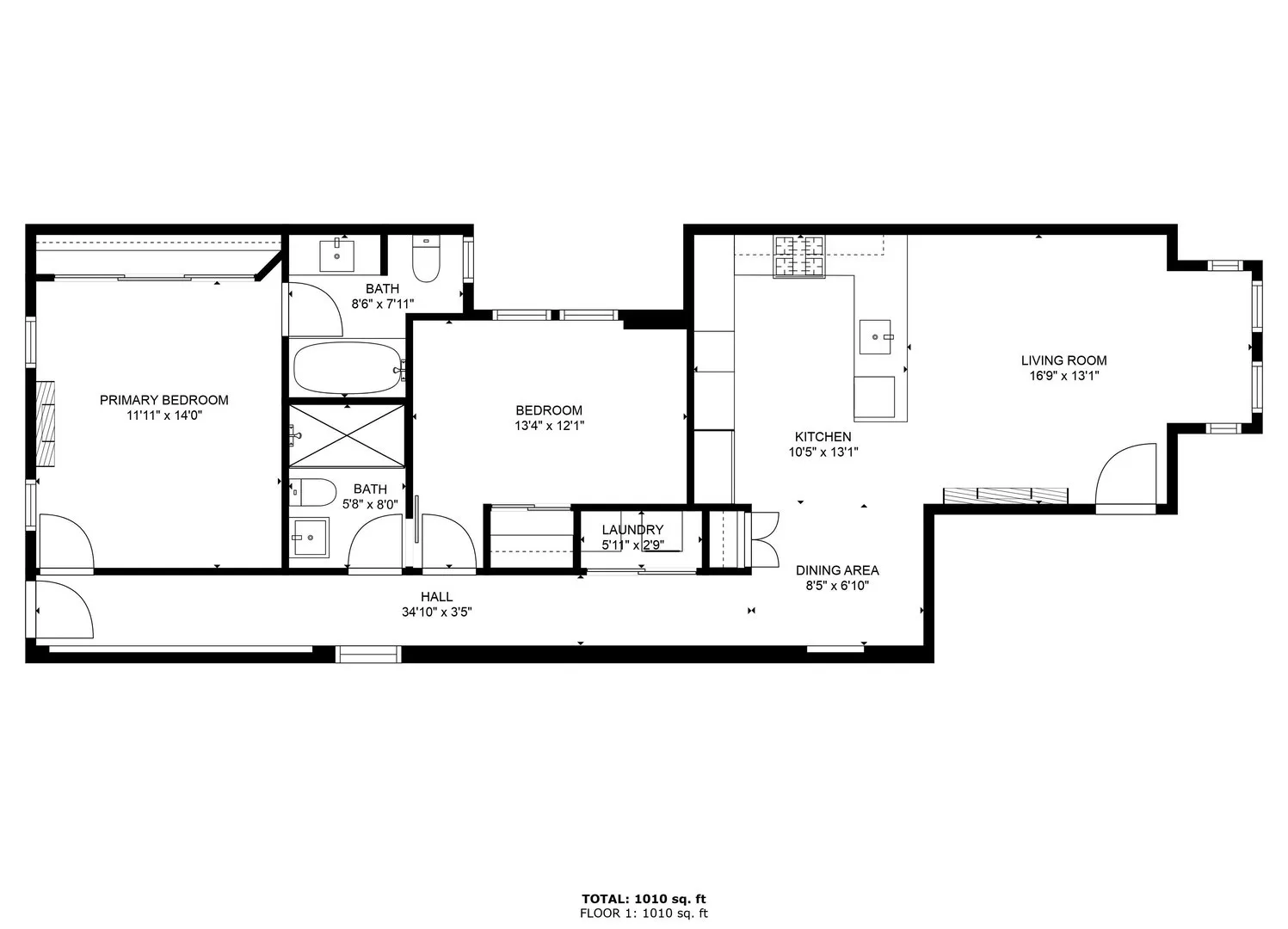
Beautiful historic brick 3 unit In Fulton Market’s HOT West Loop. This rare three-unit luxury rental structure is exactly in the path of new developments. No money was spared and fully rehabilitated in 2016. Three brand-new, identical apartments that have been completely remodeled with premium finishes and appliances. Sleek two-bedroom, two-bathroom apartments with the same layout. Kohler kitchen and bathroom fixtures, Bosch appliances, wine refrigerators, and quartz worktops. Each unit has lots of closet space, Hunter Douglas blinds, and wide plank wood floors. Each apartment has a quad screen security system, two fireplaces, an in-unit washing and dryer, high-efficiency water heaters, and large Trex decks with gas hookups. Like new historic brick structure with fiberglass insulation in the walls and ceiling, R11 quiet zone walls, new plumbing, electric, new roof, & more. 2 car garage. Roof is ready for a roof deck or whatever the next owner desires! Accessible to multiple CTA transportation lines & highways as well as all the restaurants, bars & shops the West Loop is famous for! Less than a block to three Michelin Starred Restaurants and others in the world class culinary Fulton Market District. Less than half a mile to the proposed United Center Entertainment Campus! Also, in the top-rated Skinner school district. The property’s location is further enhanced by surrounding major developments like the Fulton Park Campus, luxury condo towers at 1325 W Fulton, and residential towers at 1200 W Fulton, as well as steps from the up-and-coming luxury condo development The Fulton Bond, placing it in one of Chicago’s fastest-growing investment areas.

Residential Income For Sale

1420 W Fulton Street, Chicago, Illinois 60607

  • Bedrooms : 6
  • Bathrooms : 6
$2,200,000
Listing ID#12598634
QR Code
Basic Details
Property Type : Residential Income
Listing Type : For Sale
Listing ID : 12598634
Price : $2,200,000
Bedrooms : 6
Rooms : 15
Bathrooms : 6
Year Built : 1883
Listing Status : Active
Contact Agent